Accueil
À propos
Services
Projets
Questions - Réponses
Prise de RDV
Projets
Services
Études préliminaires
Permis de Construire,
Déclarations Préalables
Suivi de chantier
Études complémentaires
Honoraires
Rendu
Partenaires
Contact
Accueil
Projets
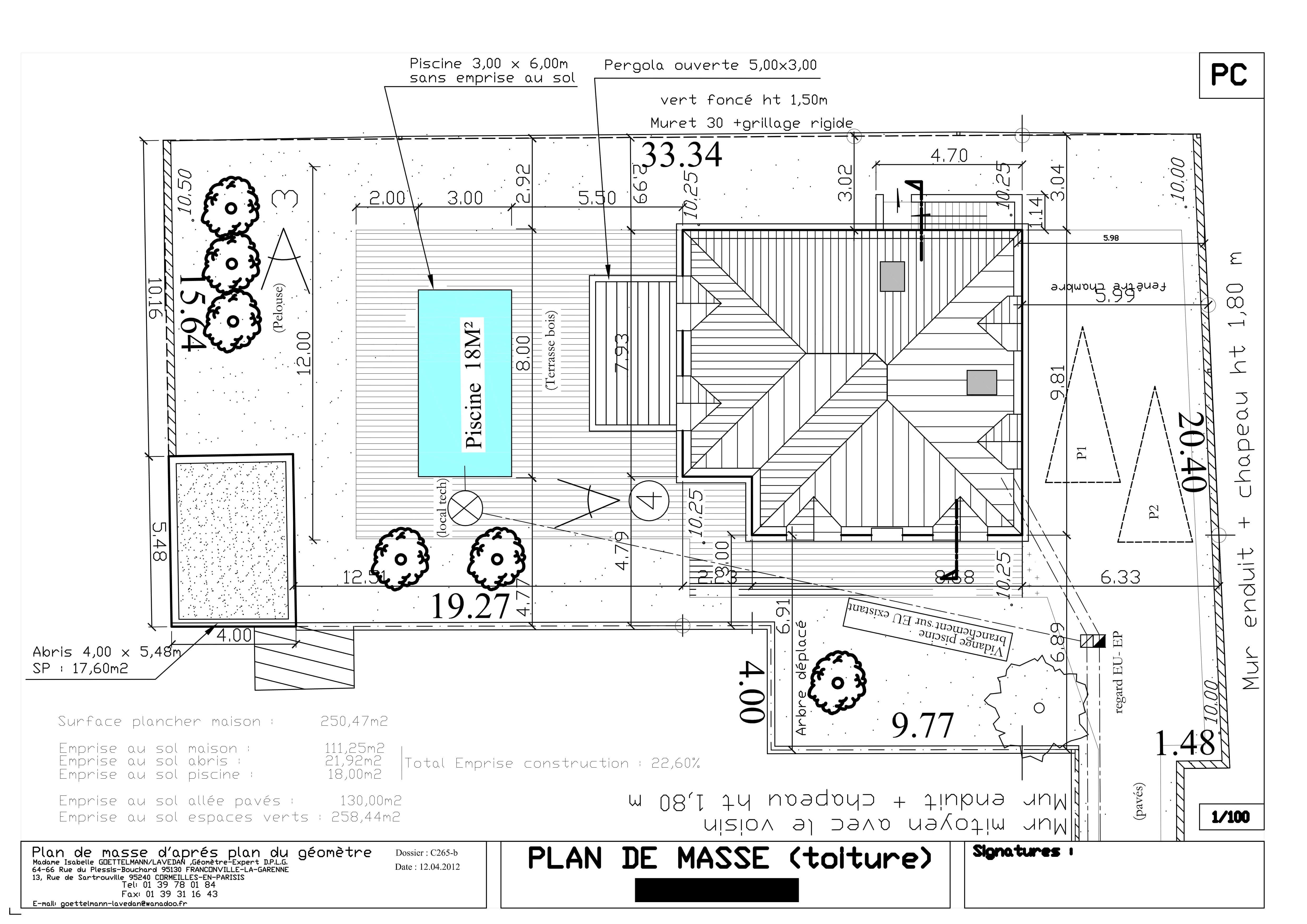
Réalisation d'une piscine avec son local
Réalisation d'une piscine avec son local à Cormeilles-en-Parisis, Val-d'Oise (95)
Année :
2015
Maître d'ouvrage :
Privé
Surface :
0 m²
Lieu :
Cormeilles-en-Parisis, Val-d'Oise (95)
Précédent Projet
Prochain Projet
Projets Similaires
piscines - Les Lilas, Seine-Saint-Denis (93)
Réalisation d'une piscine intérieure
piscines - Montreuil, Seine-Saint-Denis (93)
Réalisation d'une piscine
piscines - CHAUMONT EN VEXIN
LA PISCINE LE POINT CENTRAL DE LA CONSTRUCTION