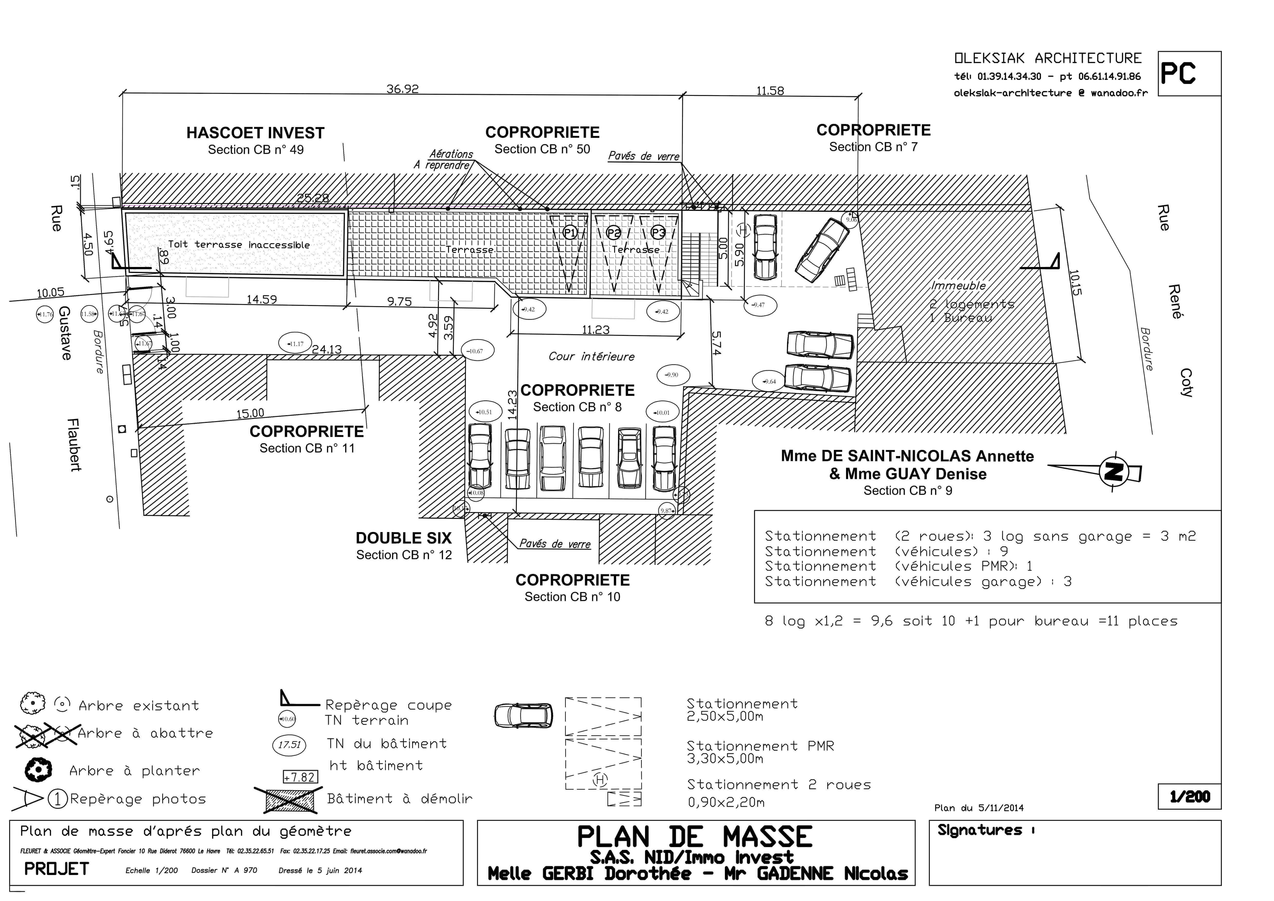
Immeuble au havre sur terrain étroit et en pente à Le Havre, Seine-Maritime (76)

Immeuble de 6 logements constitué de 1 studio , 2 deux pièces , 2 trois pièces , 1 six pièces en triplex avec terrasse type Roof top de 73m2 ainsi que trois garages + caves.
Le défi était de réaliser un bâtiment le long de ce terrain en pente se terminant par une cour.

Année : 2014

Maître d'ouvrage : G

Surface : 333 m²

Lieu : Le Havre, Seine-Maritime (76)