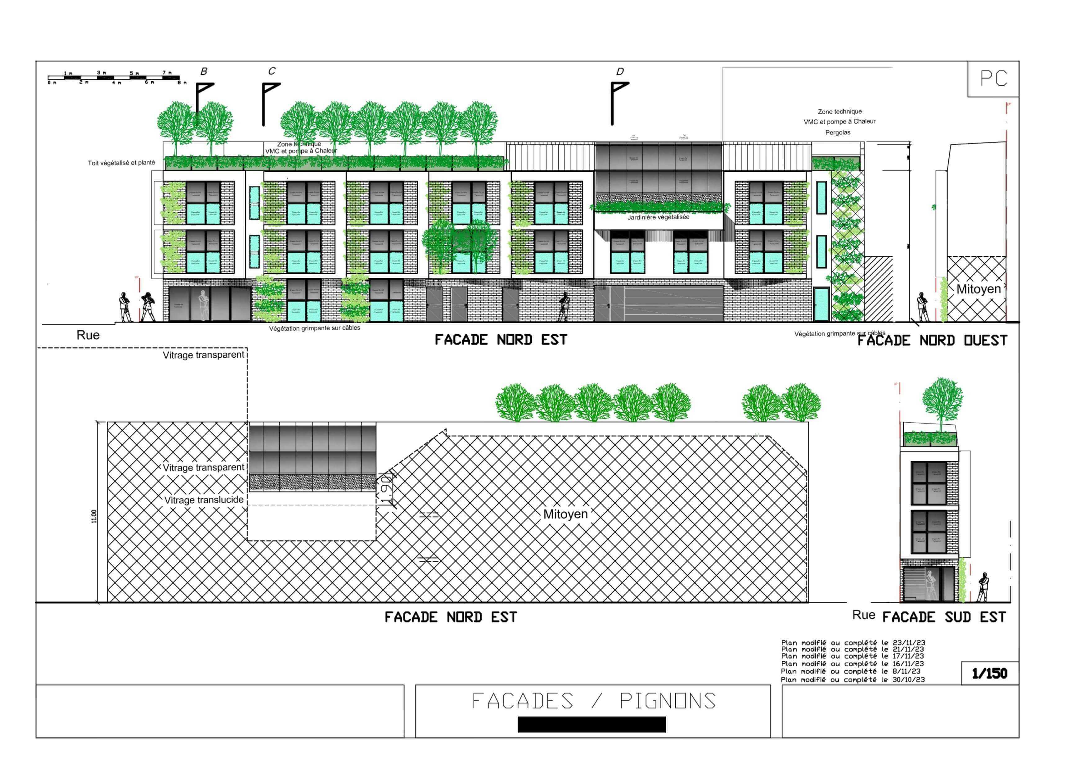
Immeuble de bureaux à Asnières-sur-Seine, Hauts-de-Seine (92)

Le projet consiste à créer une surélévation sur un existant hyper étroit constitué de 5 bureaux, d’un espace de détente sous une verrière, un toit végétalisé avec des arbres.

La difficulté de ce projet était de créer suffisamment d’ouverture et une façade harmonieuse tout en conférant aux bureaux un espace suffisant.

Année : 2025

Maître d'ouvrage : Privé

Surface :

Lieu : Asnières-sur-Seine, Hauts-de-Seine (92)